Back area A5
Date of project/implementation: 2011-2012/2012/2013

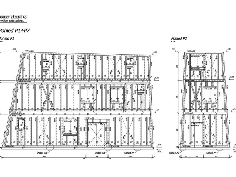
An object that is the subject of documentation has three floors. The load bearing structure of the building is a combination of wood, composite timber-concrete, masonry and steel structures. The house is founded on two-stage foundation strips coupled with a floor plate.






